
  Electronic city
Sipani Viveza is a newly launched residential project at Electronic City Phase 1. The property is being developed by Sipani Properties. Sipani Group entered the real estate sector in 2004 and has since maintained an unblemished record of setting a benchmark in its endeavours by inculcating architectural and technological innovations. Sipani Viveza location is in Electronic City Phase 1. One of Bangalore's most well-known technology clusters, Electronic City, spans 332 acres in the villages of Konappana Agrahara and Doddathogur. There are numerous technology companies, industrial facilities, and apartment complexes in Phases I, II, and III. Electronic City is strategically located next to other important South Bengaluru neighbourhoods including HSR Layout, Bommanahalli, Harlur, and Bommasandra Industrial Area. The area is a well-known residential area with a variety of multi-story apartment and villa complexes.
Every area of Sipani Viveza is created with the requirements of your entire family in mind. Sipani Viveza possession is in 2023.Sipani Viveza amenities are world class amenities, includes gym, outdoor & indoor play area, meditation area, swimming pool, etc. While luxury underlines every offering of Viveza, everything outside the individual homes, the shared spaces, outdoor amenities in its expanse are created for the overall well-being, safety, security and joy of the inhabitants.
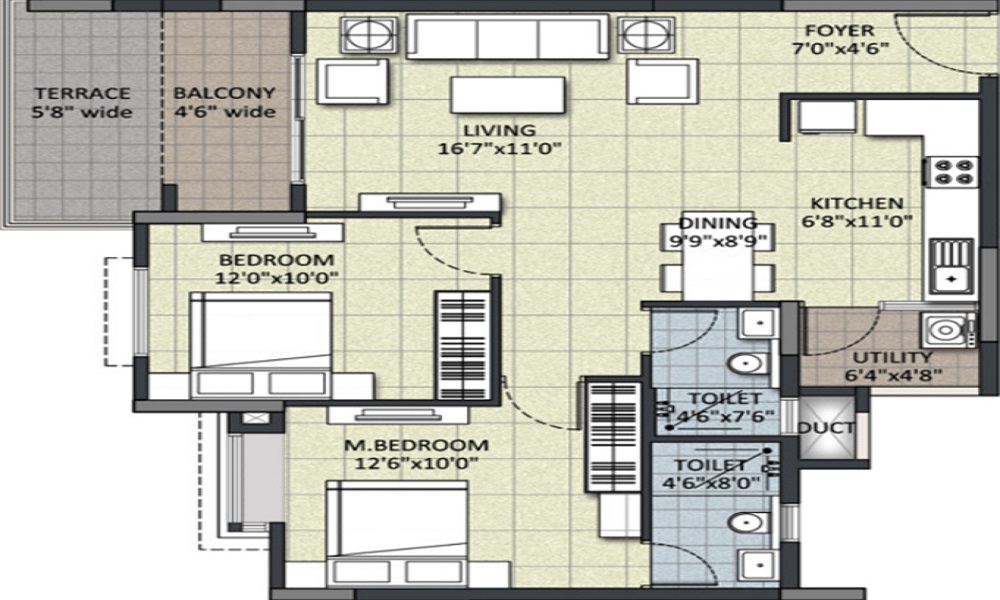
You can accurately comprehend the layout of the home by looking at the Sipani Viveza floor plans, which provide information about how the rooms and other spaces are organised in the unit. This is a project with good planning. It takes up an expansive 3 Acre of space. There are 271 apartments in all in this project. The state of the available project units is under construction. Three towers make up this thoughtfully constructed location, each offering a unique advantage. The start date for the project is July 1, 2019. It will become legally yours on December 1, 2023.Sipani Viveza price range is excellent when compared to other competitors.
When it comes to this project, our professionals at Aroli Real Estate Portfolio Management Solutions are highly skilled, and they can offer you full support. To learn more about the fantastic characteristics of the project, download the Sipani Viveza brochure from this page.
Type | Area (Sqft) | Price |
---|---|---|
1bhk | 690 | Starting from : ₹ 53,00,000/- |
2bhk | 945-1210 | Starting from : ₹ 70,00,000/- |
3bhk | 1230-1515 | Starting from : ₹ 98,00,000/- |
BADMINTON COURT    
BASKET BALL COURT    
CCTV CAMERAS    
CLUB HOUSE    
COVERED CAR PARKING    
CRICKET COURT    
GYMNASIUM    
INDOOR GAMES    
JOGGING TRACK    
KIDS POOL    
LIFT    
MEDITATION HALL    
OUTDOOR GAMES    
PARTY AREA    
PLAY AREA    
SWIMMING POOL    
TENNIS COURT    
TODDLERS POOL    
VOLLEY BALL    
FIRE SAFETY    
MULTI PURPOSE HALL    
WATER FEATURE    
BADMINTON COURT    
OPEN SPACES    
YOGA LAWN    
FIRE ALARM    
The Property Was Built By SIPANI PROPERTIES
The Sipani group is renowned for introducing contemporary technologies to the Indian automotive sector in the 1980s. The Sipani firm made the audacious decision to introduce its car, the Sipani Dolphin, long before Tata Motors and other large automakers entered the market. The Dolphin dominated the Indian race and rally circuit for almost five years and was well renowned for its performance.The company entered the real estate market in 2004, and since then, it has a spotless record of completing projects on schedule. By offering clients top-notch apartments with all the amenities at an incredible price when it joined the cheap housing category in 2014, it redefined what the phrase "Affordable housing" meant.
Sipani Properties is now involved in a variety of projects, ranging from Luxury to Economy spread all over Bangalore. Its projects are truly where quality meets innovation, allowing the Sipani Group to bring its elaborate and well-thought plans to reality. The key focus point of Sipani Properties is client servicing and social services. Therefore, most of the funds generated by the company are invested in social services and charity via the RK Sipani Foundation.
18th Main, 6th Block, Koramangala, Bangalore
All Rights Reserved To Aroli Realestate. Developed by Glinjos Innovations Software Solutions LLP.